西城名苑丨年中焕新家,618精选好房来袭!
618电商购物节即将到来
趁此机会
开始打造温馨梦想之家吧
特批3套618精选房源
邀您品鉴城央邻校好房

户型详情
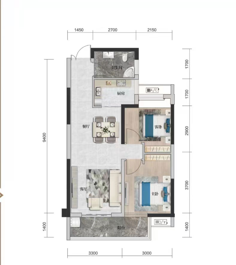
房号18#-102(建面约96㎡):
单价5180元/㎡
总价499766元
*户型图(F户型)
建面约96㎡三居室南北通透
大面积阳台与入户门对侧采光通风
很有温馨小家的氛围
三间卧室满足多人居住需求
该房源户型方正,避免了空间上的浪费
而且动静分区合理
客厅、餐厅、厨房等动区在入户门一侧
卧室布置在户型深侧
为您提供宁静的休息区
同时这也是一侧公区、一侧私区的布局
向户型内望时玄关处有所遮挡
能很好地保护居住者的隐私
房号19#-402(建面约74㎡):
单价5480元/㎡
总价410562元

*户型图(B户型)
建面约74㎡二居室
卫生间、厨房、餐厅、客厅齐全
动静功能分区明显
且两个卧室的结构设计
可以很好地保证
私人空间不被外部窥见
搭配南向阳台
一来让屋内拥有更好的视野
二来让阳光照进卧室和客厅
利于通风
房号15#-1003(建面约108㎡):
单价5490元/㎡
总价597202元
*户型图(E户型)
建面约108㎡三居室
该户型通透良好
有宽景阳台
也做到了动静分区、公私分区
动区和公区在靠近入户门的一侧
静区和私区则远离入户门
除此之外
它的主卧多了一个卫生间
更好地保障了主卧的私密性
样板间实况
西城名苑在户型布局上
做到户户阔景阳台、户型方正
样板间为您展现房屋实际情况

*实景图

*实景图
西城名苑超燃618
推出以上购房优惠
目前在售精选房源3套
钜惠在此夏
好房超前购
首付8万+
布局您的温馨小家
涵盖洋房、小高层、高层多样产品
建面约74—116㎡瞰景高层
建面约133—138㎡的低密洋房
现正热售中 恭迎品鉴!
项目地址:复州大道以南、干河路以东(新实验二小以北 前行150米)
项目电话:4000070728 转 196
如果你是第一次买房看房,或者对仙桃楼市不了解,欢迎添加房网小编微信(xtfw110)咨询了解。随时咨询了解,帮你介绍、分析、砍价、带你看房帮你拿优惠!
本文系房地产宣传推广软文,如有涉及不能输出不宜上网供大家浏览,或不当言语,请及时通知我们!!
本稿件为仙桃房网独家原创稿件,版权所有,引用或转载请注明出处。
