水云间丨双十一败家不如buy家!
各种花式打折、特卖,引无数买家尽折腰
买衣服,买包包,不停买买买
可是你们别忘了
双十一除了是购物节可还是光棍节!
与其败家
不如抓紧时机买房置业!
早日成家脱单!

(示意图)
购房时机已到
该出手时就出手
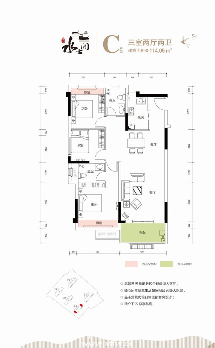
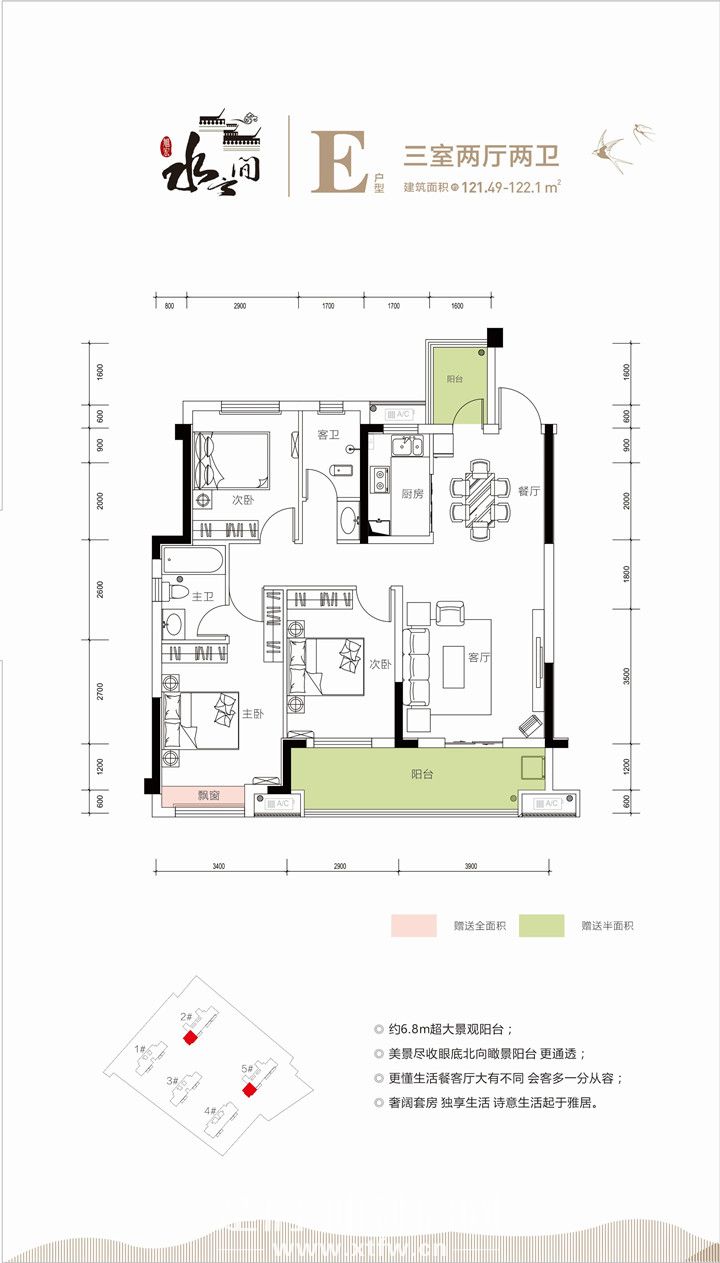
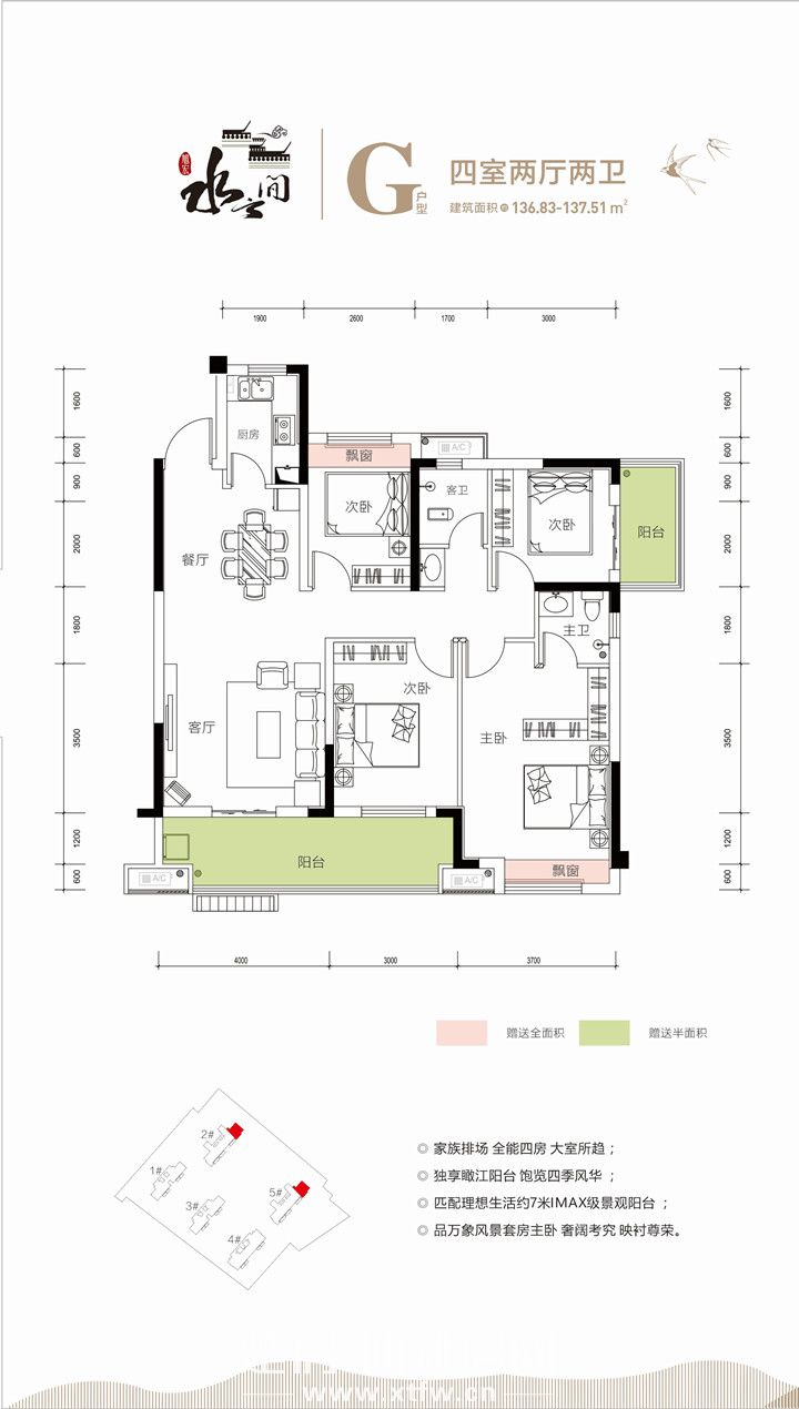
水云间五期 十一月新品加推
建面约102~137㎡
4688/㎡仅此十套
亲水生态华宅,等你来购

水云间五期,位于城市滨江地段,仙桃市旭宏置业有限公司开发定位北部大型生态水景宜居社区。

(实景图)
交通便利,沿江大道、汉江大道、复州大道三条城市主干道、去哪都方便。幼儿园至高中全龄教育,日常享受宜人景色,但繁华商业也不在话下,仙商、武商等成熟商业商圈。

(伟才幼儿园实景图)
一座城市有自然水体,它就有了灵性。水云间五期,绿化主题来源于朱熹的《观书有感》,倾力打造诗句中所呈现的江南主题园林,悬挑大阳台、南北双阳台、主卧带飘窗等,在宽楼间距的设计中,享受推窗见绿的景象。
(效果图)
临水而建,坐拥江滩公园。与绿林相拥和鲜氧作伴,呼吸间,畅饮草木气息。久居于此,必将心神安宁、润肺明目。茶余饭后,迎着映天霞光的水面,游走于水岸漫步道。枕诗意入梦,洗去一身疲乏躺在床上,水面如玉盘,将星空盛在其中。


(江滩公园实景图)




水云间五期亲水生态华宅
新中式东方人文雅居 建面102-137㎡
新品加推11月限时销售
~ 4688/㎡限10套 ~
临江高层 自然美景 尽收眼底
项目地址:仙桃市干河办事处麦芽路(9路公交车直达)
项目电话:4000070728 转 200

