楼盘评测:13万方低密人文大宅,均价约6000元/㎡+。
“
买房无小事,细节是大事。为助力购房者更全面的获取仙桃楼市资讯,更清晰的了解仙桃各大在售项目,楚房·仙桃房网通过实地探访的方式,将购房用户较为关心的地段区位、产品、配套、户型等多个方面,整理成为完整的“楼盘评测”,让每个有购房意向的用户,拿着手机就能了解到新鲜、全面的仙桃楼市。
今天小编带大家详细了解位于城西去年开盘的项目——西城名苑。

西城名苑于在2022年12月26日拿到了13#、#16、#18、#19楼的预售证。并于年前推出这四栋楼共计459套房源,建面约74—138㎡的二室、三室、四室,全盘毛坯交付。
目前高层均价为6000元/㎡,洋房均价为6600元/㎡。


地段
西城名苑地处城西版块和老城区版块交汇处,享城西生态资源和老城区优质配套资源。在仙桃城区两条主干道复州大道和干河路的交汇处,周边配套设施成熟。

*效果图

商业配套
项目规划三面环绕的底商,距离瑞银国际城不到一公里,纽芬兰酒店商务圈、富迪三友等商圈邻近项目周边,李小双运动城也在不远处,满足购物、文化、娱乐所需,步行可满足基本生活日常所需。


*实拍图

医疗
项目南侧有仙桃市妇幼保健院和同泰医院,优质医疗资源,给生活提供更好的保障。


*实拍图

教育
南边有仙桃中学,北面有新实验二小。周边更是有仙桃九中、小南小学、弘文中学、外国语学校和城西幼儿园等学校。书香环绕学校为邻,优质教育资源启幕菁英未来。


*实拍图


项目情况:
项目所在的地块是意美地产在2021年6月7日以2629元/㎡的楼面地价拿下,溢价率43.94%,一举成为城西地王,到现在近两年城西并无商服住宅用地拍卖成功。

西城名苑占地约4.9万㎡,整个项目规划住宅为6—27层的7栋洋房和6栋高层,住宅户数为900户,是一梯两户和两梯四户的设计。目前全盘在建,底部三面规划沿街底商,可满足日常生活所需。

*实拍图
小区整体容积率2.5,绿化率35%,结合中国山水画的意境,打造全新的围合式新中式园林景观。对住宅区内部活动场所分类设计,如中央会客厅、环形跑道、阳光草地,户外书吧、户外棋牌等,致力于成为仙桃品质居住地。

*效果图
目前已经推出的是13#、16#、18#、19#楼,是高层和洋房住宅。其中16#、18#、19#楼是瞰景高层,13#为低密洋房,在高层住宅居多的城西,西城名苑洋房有较强的竞争力。

*16#实拍图

*13#实拍图

*19#实拍图

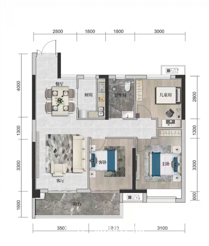
户型产品:
西城名苑目前在售的户型为建面约74—116㎡瞰景高层和133—138㎡的低密洋房,
其中75㎡为二室;96—116㎡为三室;133—138㎡是四室。大面积段户型的低密洋房有南北双阳台,符合改善型购房者的需求;小面积段户型给了刚需客户一个很好的置业机会。
13#楼户型:109㎡、116㎡

16#楼户型:134㎡

18#、19#楼户型:75㎡、96㎡、111㎡

总结

