紫金城
首页
新房
出售
出租
资讯
查看大图
已售完
已经售完
降价通知
实际价格以售楼处为准,户型图为开发商提供,具体以实际交房标准为准
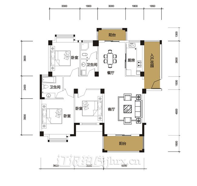
户型:
3室2厅2卫
建筑面积:
133.17m²
·超居空间互相独立,三卧相连,分区合理 ·奢华客厅连接景观阳台,休闲观景,一步到位 ·入户花园兼顾玄关功能,增加过度空间 ·开放式厨房连接3米生活阳台,享受健康生活
所属楼盘:
紫金城
查看详情
全天候直通售楼处
置业顾问1对1服务
预约看房
猜你喜欢
元泰商业街
正在销售
城南版块
0
现代·森林国际城|北苑
正在销售
城南版块
大型商圈
7200元/m²
分享
海报
免费咨询售楼处
降价通知
留下您的联系方式方便业主联系您
确定
首页
新房
出售
出租
资讯
导航
添加微信
随时随地了解更多房源信息~
长按保存微信二维码
复制微信号
https://m.xtfw.cn/659/hxshow-1336.html
复制此链接分享给好友
取消
已售完
均价
8.65万m²
占地面积
20.53万m²
建筑面积
紫金城
地址:黄金大道与致富路交汇处(实验二小实验部对面)
电话:3219888
更多详情,请您来电咨询