实际价格以售楼处为准,户型图为开发商提供,具体以实际交房标准为准
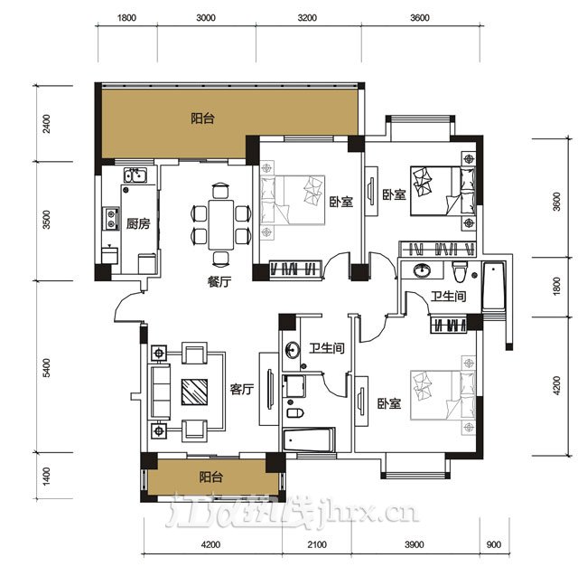
- 户型:
3室2厅2卫
- 建筑面积:
140.95m²
·居室空间更富层次感,让起居和休憩空间相分离
·南北两卧均设飘窗,亲近自然,享受阳光
·南北双厅通透,让室内有更好的通风条件,更干爽、清新
·罕有8米观景阳台,精粹空间,享受更高品质的居家休闲
3室2厅2卫
140.95m²

更多详情,请您来电咨询